Neubau Gutenberg-Museum Mainz – Weltmuseum der Druckkunst
Stadtbaustein
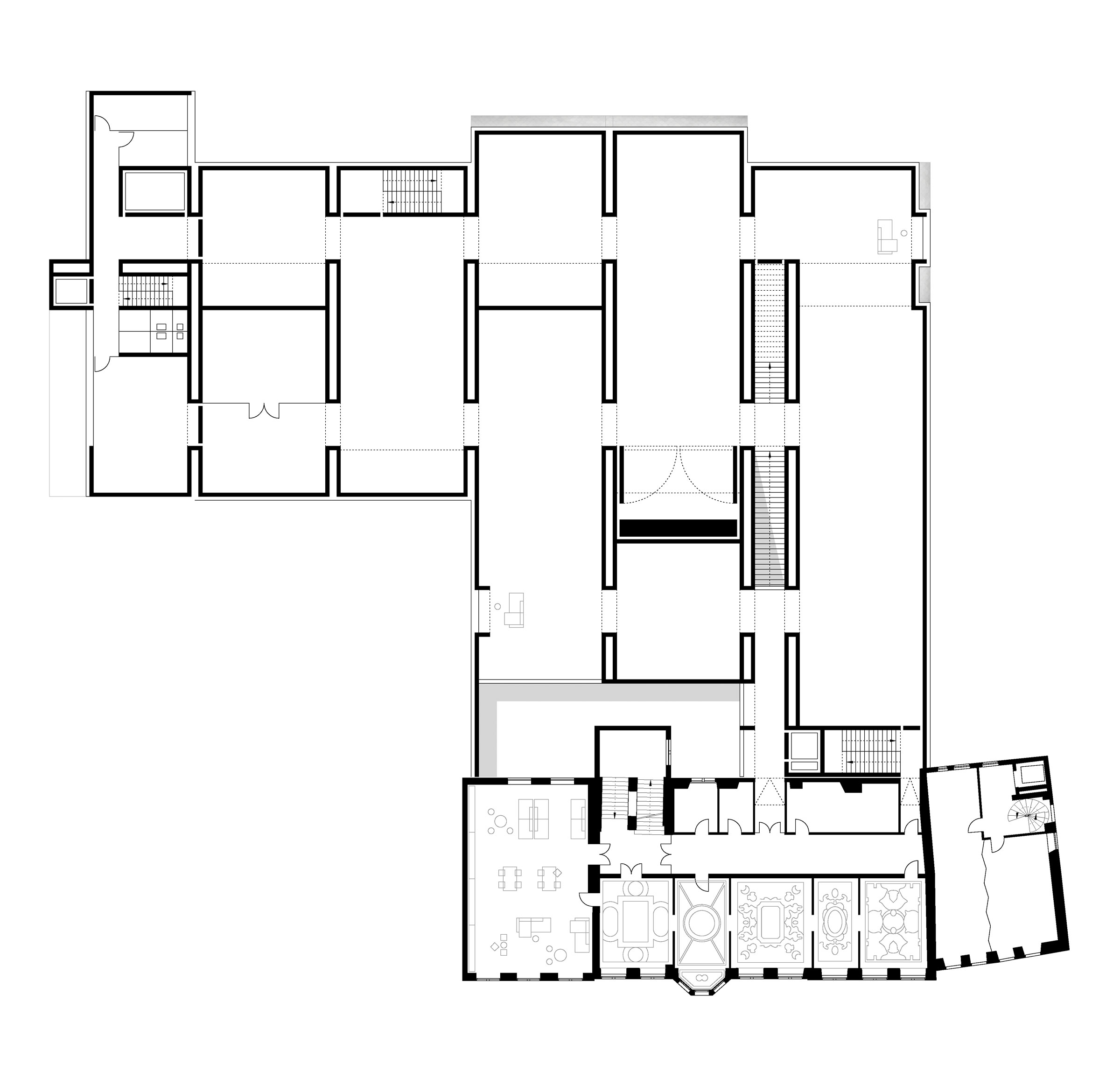
Das neue Gutenbergmuseum restrukturiert den es umgebenden Stadtraum. Seine gegliederte Kontur tritt in Dialog mit den vorhandenen Straßen- und Platzräumen und wertet diese auf. Die Seilergasse wird wieder an ihre angestammte Lage, direkt an den westlich angrenzenden Häuserblock, gelegt. Die Ecke zwischen Seilergasse und Mailandsgasse wird aufgeweitet und behält die Anlieferung für das Museum im Erweiterungsbau. Ein Rücksprung des Baukörpers an der Ecke der Mailandsgasse - Rotekopfgasse schafft hier einen kleinen Platzraum mit dem Nebeneingang zu Konferenzräumen und Vortragssaal. Die Rotekopfgasse wird hinter dem Hotel Schwan verbreitert mit weitem Blick ins Foyer und auf die Wechselausstellung.
Struktur
Eine gerichtete bauliche Struktur gliedert das ganze Baufeld. Diese schafft in den Ausstellungsgeschoßen überschaubare Ausstellungsräume welche den überwiegend klein- und mittelformatigen Ausstellungsgegenständen maßstäbliche Fassung geben. Über zwei geradläufige Treppenläufe, die zusammen eine „Himmelsleiter“ bilden, erreichen die Besucher die Dauerausstellung.
Die Haupttreppen bilden das Rückgrat des Baus und zusammen mit den Enfiladen in der Querrichtung das gerichtete Wegenetz der Besucher. Jeder Enfiladenweg führt auf ein Fenster zu welches Ausblick in den angrenzenden Stadtraum gewährt und zugleich der Orientierung der Besucher im ansonsten lichtscheuen Gebäude dient.
Schichtung der Nutzungen
Die Besucher betreten das Gutenberg Museum im Neubau.
Im weiten, nach allen Seiten Aus- und Einblick gewährenden Foyer werden die Besucher empfangen. Gutenbergwerkstatt als Blickfang am Eingang, der Vortragsaal, die Wechsel- ausstellungsräume sind zusammen mit Shop und Café im Römischen Kaiser um das großzügige gruppiert. Die Treppenachse führt die Besucher mit der „Himmelsleiter“ nach oben zu Schatzkammer, Dauerausstellung und Kindermuseum sowie zur Sonderausstellung nach unten.
Nutzungen in den Bestandsgebäuden
Der Römische Kaiser und das Hotel zum Schwan grenzen unmittelbar an das weiträumige Besucherfoyer. Im Erdgeschoß prägt die historische Gebäudestruktur mit Ihren bauzeitlichen Stuckdecken die Räume für die dort verorteten Nutzungen, Shop und Café. Die wieder geöffneten, alten Zugänge vom Liebfrauenplatz, sichern den von den Öffnungszeiten des Museums unabhängigen Zugang. Vor dem Römischen Kaiser ist die Freischankfläche des Museumscafés, welches niedrigschwellig die Öffentlichkeit mit dem Museum verbindet.
Im Obergeschoß, über die Tordurchfahrt und die historische Treppe attraktiv erschlossen, findet die Bibliothek ihren Platz. Der Studiensaal verteilt sich über die rekonstruierte Enfilade der Räume zum Liebfrauenplatz. In den beiden Geschoßen darüber sind die Büros der Verwaltung bestandsschonend in die vorhandenen Räume eingefügt.
Das Hotel Schwan ist mit einer kurzen Verbindungstreppe angebunden. Hier erhält die Gutenberggesellschaft, mit eigener Adresse, ihre Räume im ersten Geschoß und der Stadtschreiber eine Wohnung unter dem Dach.
Materialtradition Ortsbezug
Auf einem Sockelgeschoß aus Sichtbeton mit geschoßhohen Verglasungen nach allen Seiten ruht die homogen bekleidete Gebäudeplastik der Ausstellungsräume. Das neue Gutenbergmuseum erhält ein handwerklich gefertigtes Kleid aus Schieferplatten in einem Schablonenschnitt. Der Neubau bezieht sich in seiner Materialisierung auf den Ort und tritt mit ihm in Dialog. Schiefer prägt die Mainzer Innenstadt und ist für Dach und Wand gleichermaßen geeignet.
Realisierungswettbewerb | 2022 | Anerkennung
mit Und Mang Architektur
Nutzung
Museum
BGF | BRI
8.602 m2 | 37.871 m3
Auslober | Bauherr
Stadt Mainz
Mitarbeit
Louis Saint Germain, Leonie Achin






