Bürger- und Kulturzentrum Altötting
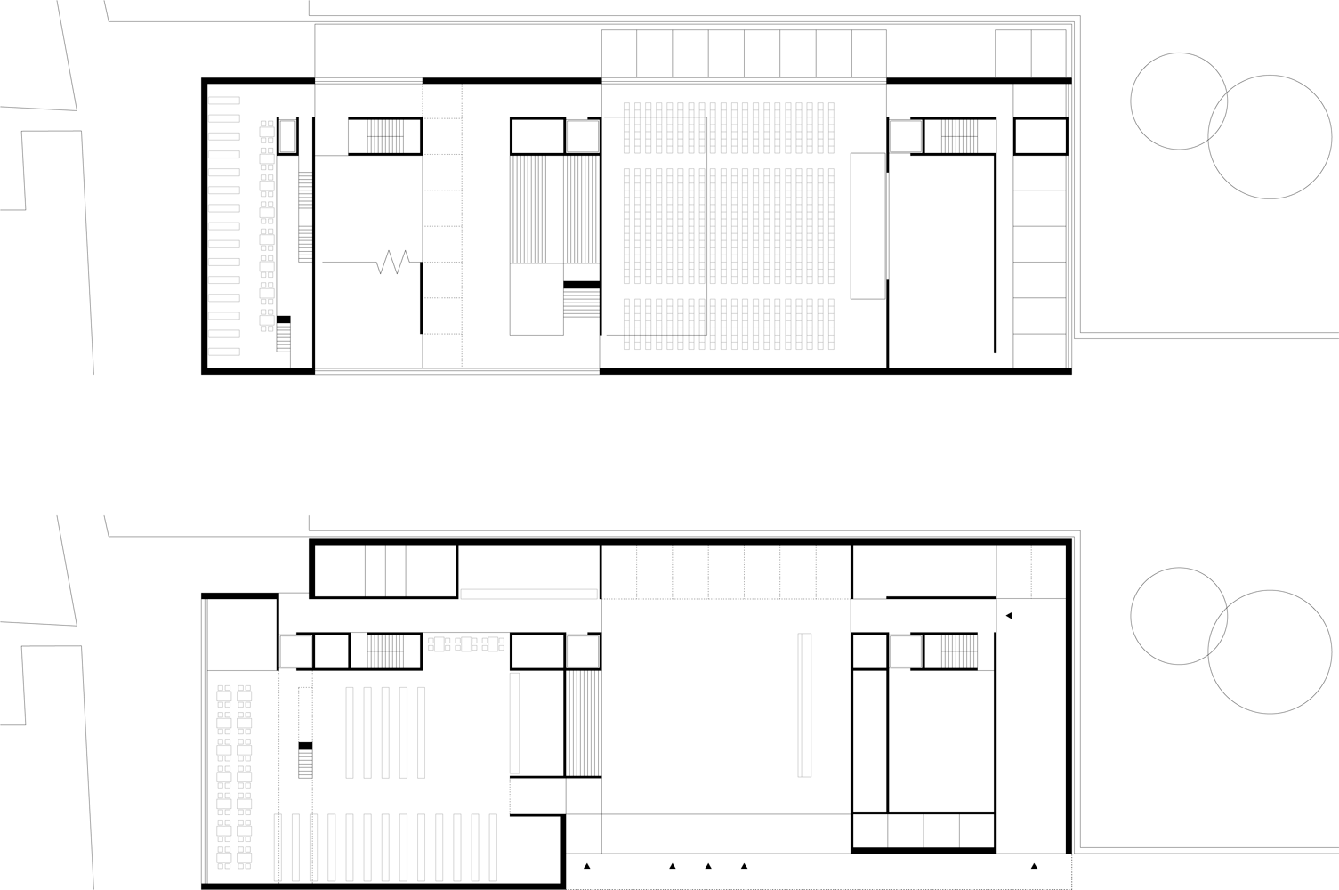
Kapellplatz-Kulturzentrum-Panorama. Dieser Verbindungslinie entsprechend artikuliert sich das neue Kulturzentrum als längsgerichtetes Gebäude mit davor liegendem angerartigem Platz. Die Dachlandschaft greift die traditionellen bauplastischen Elemente der Stadtstruktur auf und übersetzt sie in eine zeitgenössische Formensprache. Zugleich kommuniziert die Dachlandschaft mit ihren senkrecht zueinander stehenden Satteldächern die innere Organisation des Hauses, die sich in ein festliches Haus mit Saalbereich, dem Kulturzentrum und in ein Bürgerhaus mit gemeindebezogenem Dienstleistungsbereich, Bibliothek und Proberäumen für die Musikkapelle gliedert.
Ein grosszügiges Foyer unter dem Längsbau empfängt die Besucher auf Platzniveau. Der große Saal und der Tagungsbereich liegen jedoch bewusst darüber und noch höher angeordnet. Diese Staffelung und Verteilung der unterschiedlich ausgebildeten Foyer- und Aufenthaltsflächen sollte auch dazu verführen, durchs Haus zu wandeln.
Realisierungswettbewerb | 2009 | 2. Preis
Nutzung
Kulturzentrum | Tagungs- und Kongresszentrum | Bibliothek | Vereinsräume
BGF | BRI
3.229 m2 | 23.409 m3
Auslober
Stadt Altötting
Landschaftsarchitektur
el.ch landschaftsarchitekten, Elisabeth Lesche, Christian Henke
Publikationen
wettbewerbe aktuell 04|2009




