Universität Brixen
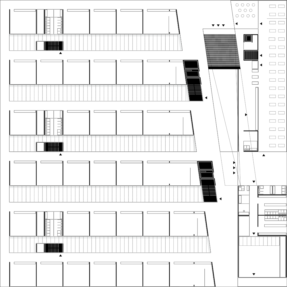
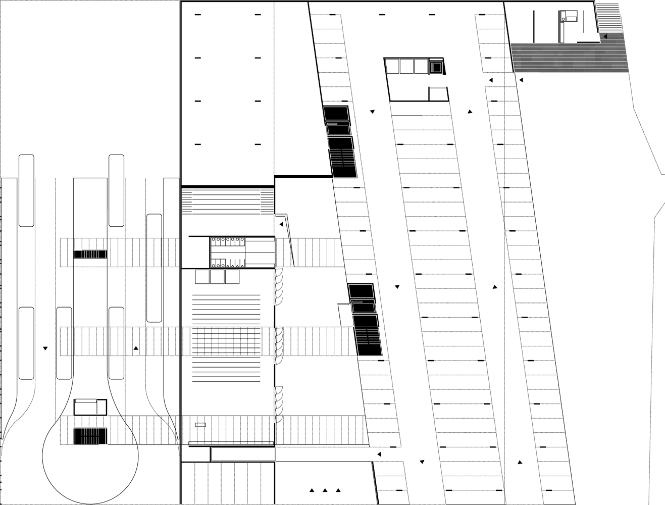
Der Neubau der Freien Universität Bozen in Brixen wird als kompaktes, dreigeschossiges Gebäude mit quadratischer Grundform und einer Kantenlänge von 84 Metern vorgeschlagen. Das Quadrat als die rechteckige Form mit der grössten Fläche bei gleichzeitig geringstem Umfang, erscheint uns nicht nur aus betrieblichen- und gebäudeenergetischen Gründen als die Geeignetste. Auf abstrakter Ebene symbolisiert es wie keine andere Figur das, was die Universität in Brixen darstellt: einen Punkt, den Anfang einer neuen Entwicklung. Das Dach des Gebäudes ist flach, die Proportionen sind liegend. Es ist dadurch dem, was in Brixen den räumlichen Eindruck am stärksten prägt, also den Bergen radikal unähnlich. Der sinnlichen Dominanz gefalteten Gesteins entgegnet es mit der kühlen Sachlichkeit eines Behälters des Geistes. Statt der Enge des Tals thematisiert es die Weite des Blicks.
Realisierungswettbewerb | 1998 | 4. Preis
Nutzung
Hochschulgebäude
BGF | BRI
16.400 m2 | 70.900 m3
Auslober
Autonome Provinz Bozen-Südtirol, vertreten durch das Amt für Hochbau Ost
Publikationen
wettbewerbe aktuell 03|1999
"Ein Bau für die Bildung", Autonome Provinz Bozen, 1998



